Coming soon: Five new OPAL homes on Lydia Lane | OPAL’s first new single-family home construction in 16 years
Published 1:30 am Wednesday, March 18, 2026
By Rusty Diggs
President, OPAL Board of Trustees
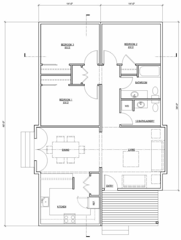
As president of OPAL’s board of trustees, I am excited to announce $1,875,000 in new funding — $1,075,000 from the San Juan County Home Fund and $800,000 from the State Housing Trust Fund. These grants will enable OPAL to begin construction of five three-bedroom, two-bath houses on Lydia Lane near Rosario, on lots that were purchased in 2020.
The new houses are being planned with larger island families in mind. OPAL has built no ownership homes larger than two bedrooms since Wild Rose Meadow was completed in 2010.
The new 1,200-square-foot, eco-friendly dwellings will be constructed by West Coast Homes in Lynden, who will manage the sitework and build, deliver and install each residence. By using stick-built modular construction, OPAL can provide a quality product more quickly, with less disruption to existing neighbors and reduced demands on staff time.
OPAL’s work on Lydia Lane began eight years ago when OPAL acquired its first house built under the Homes for Islanders self-build program. Since then, two adjacent HFI homes have become part of OPAL. In 2020, with an eye to the future, OPAL purchased the six remaining lots in the neighborhood. One lot became the site for an island house donated to OPAL and moved. The other five lots have remained vacant — until now.
More than 90% of the funding for Lydia Lane is in place. An additional $250,000 is needed for work to begin this summer.
When completed, the Lydia Lane neighborhood will have nine OPAL homes and five homes built/owned under the Homes for Islanders program.
None of this could happen without your support. Your donations make it possible for OPAL to act as opportunities arise and thoughtfully plan for each situation. To learn more or to help fund this work, contact OPAL’s Executive Director Lisa Byers at lisa@opalclt.org.
Thank you for faithfully standing with us! Together, we’re making affordability possible.
