What’s happening with The Olga Store Building?
Published 3:00 pm Sunday, September 15, 2019
Friends of the Olga Store Building, now a state registered nonprofit corporation and charitable organization, is making headway on obtaining The Olga Store and absorbing the Olga Post Office. In a public meeting on Friday, Sept. 6, FOSB was joined by the Orcas Food Co-Op to share news and progress toward reclamation.
“This is a collective vision, we’re just focusing it,” FOSB President Colleen Stewart said. “We continue to get overwhelming feedback of support. And we’re aware this isn’t the path of least resistance.”
FOSB has created a business plan, available at https://www.theolgastore.org/business. The property, which includes an apartment and has previously been home to the Olga Post Office, a gas station and Olga store, has been offered for approximately $660,000 by Patrick Stolmeier of New York. Public record indicates the gas tanks were removed with a clean bill of health in 1992.
Olga Post Office
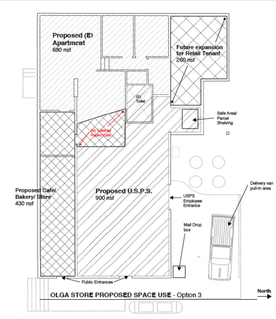
In an official letter to San Juan County Council member Rick Hughes, the U.S. Postal Service announced plans to relocate the existing Olga Post Office inside the Olga Store in lieu of a modular compact building fabricated on 3rd and Olga St. Leasing negotiations are underway. The decision was made based on both verbal and written consideration by the community. The site of the current Olga Post Office is under lease through Oct. 31, 2019 and the property owner has indicated no interest in extending the lease. The existing Olga Post Office will remain in operation until Oct. 31.
According to Ernie Swanson, Communications Specialist for the Seattle District of the U.S. Postal Service, the Eastsound Post Office will be used on an interim basis and “cluster box units (CBUs) will be installed outside the Olga Post Office. These are locking mailboxes on a pedestal that is set in concrete.”
FOSB plans to lease 900 square feet of The Olga Store to the U.S. Postal Service.
Orcas Food Co-op involvement
Orcas Food Co-op General Manager Learner Limbach met with members of the FOSB board to learn more about plans for the Olga Store Building and offer help with financial planning, “mostly as an interested community member.”
The Orcas Food Co-op board voted (9-0) in favor of exploring the option of a cooperative cafe in the south-facing sun porch of the building and drafted an initial floorplan. FOSB will be responsible for basic renovations to the space, contingent upon permitting and community feedback.
“We want to keep it relatively simple, but also want to meet the expressed needs of the community and it costs more to do renovations with historic character in mind,” Limbach said.
Initial estimates indicate it will cost the co-op between $50,000 and $75,000 to outfit the space with the necessary equipment, fixtures, and product.
In data collected at the community meeting, Limbach noted those present regarded interest in co-op products like coffee and espresso, staple grocery items such as milk, butter, eggs and bread, among other local products that could be used for making dinner.
“A strong desire was expressed for preserving the iconic Olga Store and having a place for neighbors to gather and experience community,” Limbach said. “Helping people reduce their carbon footprint by making fewer trips to Eastsound was mentioned several times. Another popular idea was a community bulletin board. The biggest concerns had to do parking and traffic flow and preserving the peaceful ambiance of the Olga Hamlet.”
All are invited to share ideas, concerns and comments to the co-op at info@orcasfood.coop or to FOSB at friends@theolgastore.org.
Land Bank
San Juan County Land Bank representatives have visited The Olga Store, and advised FOSB to “submit a formal proposal to the Commission,” Land Bank Director Lincoln Bormann said. “It’s still too preliminary to know where this is headed but we’ve been advised that the store has high historic value and is likely eligible for the national and state registers. Plus, the community effort behind the project is laudable.”
Should the Commission decide to proceed, an appraisal would need to be done to figure out the value of the historic preservation easement. This will depend on the appraised value of the structure and property, as well as depend on what specific features are being protected.
FOSB indicated plans to apply for other local and national historical building grants as well.
Fundraising
FOSB is currently fundraising for the project, which will cost $664,400 for the property and building and between $200,000-$300,000 for renovations.
FOSB has secured a private $200,000 low-interest loan and a $200,000 matching donation. They can commence with an offer on the property only if the majority of $230,000 is pledged by the community in donations and/or loans. The remaining cost of the project would be raised at a later date.
The group reached their first crowdfunding goal of $20,000 — the majority of which was originally pledged to “Save Our Post Office,” a group that had hoped to purchase the property the U.S. Postal Service currently leases but was unsuccessful.
Earlier this year, a total of $101,318 was pledged to Save Our Post Office toward the acquisition of the Olga Store, and much of that money remains to be seen by FOSB.
Stewart cites, “I’ve been told people are waiting to see us in escrow, waiting to see the environmental report, waiting to see a construction estimate. We are doing due diligence to inspect the building and hoping for people to get pledges in. That will help us gauge if we can actually do this. We want the community to show us this is what they want. If pledges don’t roll in this month, we can’t continue. Which is a shame because we’ve accomplished a lot. If everyone donated $1,000 on the Olga mailing route, it would be done. The whole reason I’m invested is: we need a space on the Eastside that is not solely for tourism or private use. This is like the general store of the future.”
Donations or pledges can be mailed to PO Box 21, Olga, WA 98279. FOSB is seeking to add a project manager and fundraising coordinator to the team. Reach out to friends@theolgastore.com.
Non-profit status
FOSB is currently in the process of applying for recognition of tax exemption by filing their IRS Form 1023. The form is up to 28 pages long and serves as an audit of proposed and previous activity. In the meantime, Island Stewards, an incubator for organizations dedicated to sustainable environmental stewardship, social and economic justice, will serve as FOSB’s 501(c)(3) emergency umbrella. Tax deductible receipts for donations over $250 are filed through Island Stewards.
Orcas Island Community Foundation is not offering to be the fiscal sponsor for FOSB.
OICF Executive Director Hilary Canty shared, “While we appreciate the desire and the great effort that the team is investing, OICF has never been a fiscal sponsor for a capital campaign. OICF has been providing support for developing an organizational and fundraising plan. Their team has a big goal and we want to help them succeed.”
